
| 大型車輌 | 不可 | EV | 無 |
|---|---|---|---|
| プラットホーム | 無 | 事務所 | 有 |
| クレーン | 無 | 近隣住宅 | 有 |
| 賃料 |
165万円 (内消費税:150,000円) |
|---|---|
| 保証金 | 1500万円 |
| 解約引き | 495万円 |
| 敷金 | 無 |
| 礼金 | 無 |
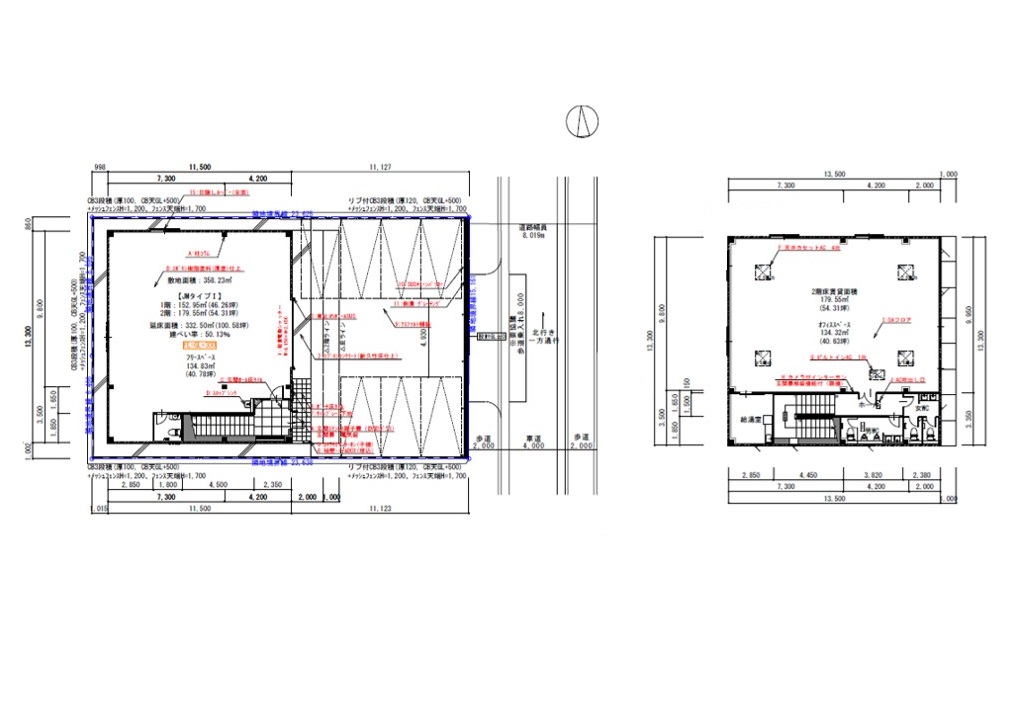
| 建物面積 | 332.5m²/100.58坪 |
| 土地面積 | 358.23m²/108.36坪 |
| 各階面積 | 1階 46.26坪 2階 54.31坪 |
| 坪単価 | - |
| 所在地 | 大阪市東成区深江南2丁目7-12 |
| 交通 | 大阪メトロ千日前線 新深江駅 徒歩7分 |
| 建物構造 | 鉄骨造 |
| 階数 | 2階建 |
| 築年月 | 2026年9月末完成予定 |
| 用途地域 | 準工 |
| 駐車場 | 有 |
| 接道 | 東 8m |
| 現況 | 未完成 |
| 引渡し | 2026年10月上旬予定 |
| 設備 |
・動力電源 ・軽量電動シャッター ・フォークリフト用電源 ・上下水道 ・給湯 ・エアコン |
| 備考 | |
| 取引態様 | 一般 |
| 更新日 | 2026年3月12日 |