
| 大型車輌 | 不可 | EV | 有 |
|---|---|---|---|
| プラットホーム | 無 | 事務所 | 有 |
| クレーン | 無 | 近隣住宅 | 有 |
| 賃料 |
88万円 (内消費税:80,000円) |
|---|---|
| 保証金 | 無 |
| 解約引き | |
| 敷金 | 300万円 |
| 礼金 | 150万円 |
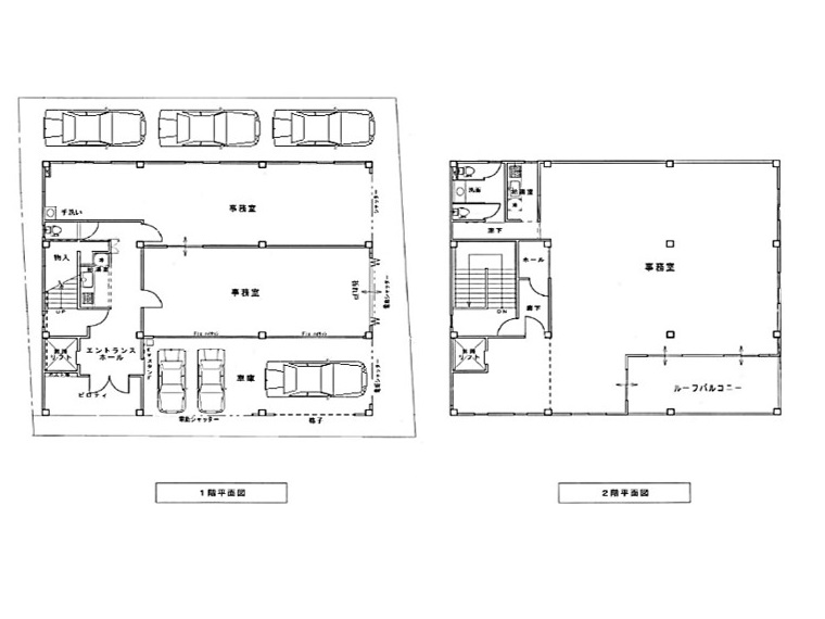
| 建物面積 | 376.7m²/113.95坪 |
| 土地面積 | 303.71m²/91.87坪 |
| 各階面積 | |
| 坪単価 | - |
| 所在地 | 東大阪市布市町3丁目10-23 |
| 交通 | 近鉄けいはんな線 新石切駅 徒歩25分 |
| 建物構造 | 鉄骨造 |
| 階数 | 2階建 |
| 築年月 | 2019年6月 |
| 用途地域 | 準工 |
| 駐車場 | 有 |
| 接道 | 外環状線沿い |
| 現況 | 賃貸中 |
| 引渡し | 2026年5月中旬予定 |
| 設備 |
・荷物用EV ・電動シャッター ・照明 ・エアコン ・トイレ3か所 ・オール電化 ・太陽光発電システム ・ルーフバルコニー |
| 備考 | |
| 取引態様 | 一般 |
| 更新日 | 2026年1月21日 |