※画像をクリックすると拡大して表示されます。
|
大型車輌
|
不可
|
EV
|
無
|
|
プラットホーム
|
無
|
事務所
|
有
|
|
クレーン
|
無
|
近隣住宅
|
有
|
地図表示
※おおよその位置を表示しております。詳細はお問合せください。
|
賃料
|
127.6万円
(内消費税:116,000円)
|
|
保証金
|
1160万円
|
|
解約引き
|
382.8万円
|
|
敷金
|
無
|
|
礼金
|
無
|
|
建物面積
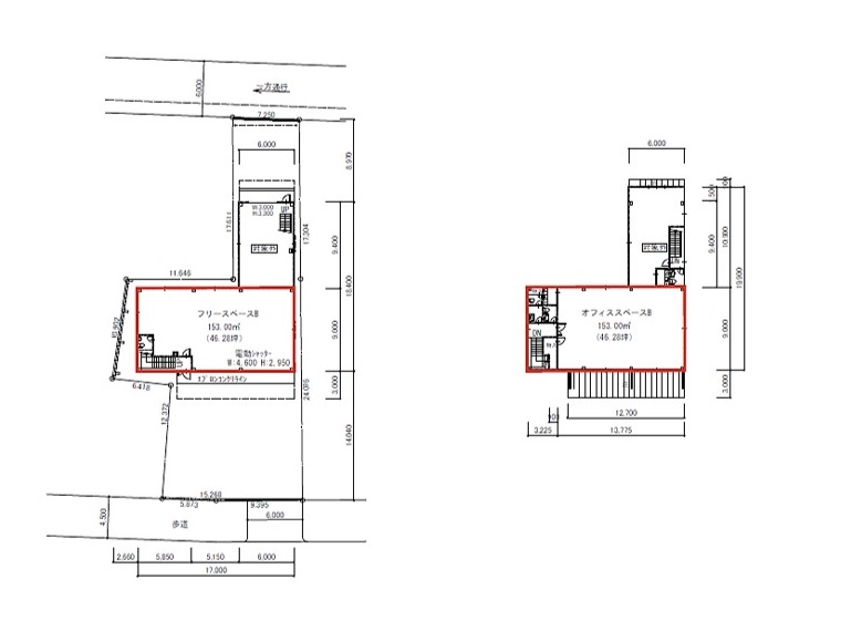
|
306m²/92.56坪
|
|
土地面積
|
|
|
各階面積
|
1階 46.28坪 2階 46.28坪
|
|
坪単価
|
-
|
|
所在地
|
大阪市東住吉区杭全6丁目1-29
|
|
交通
|
JR関西本線 東部市場前駅 徒歩3分
|
|
建物構造
|
鉄骨造
|
|
階数
|
2階建
|
|
築年月
|
2009年11月
|
|
用途地域
|
準工
|
|
駐車場
|
有
|
|
接道
|
南 28m
|
|
現況
|
賃貸中
|
|
引渡し
|
2026年7月上旬
|
|
設備
|
・電動シャッター
・フォークリフト用電源
・エアコン
|
|
備考
|
・検査済証有
|
|
取引態様
|
一般
|
|
更新日
|
2026年1月21日
|