
| 大型車輌 | - | EV | 無 |
|---|---|---|---|
| プラットホーム | 無 | 事務所 | 有 |
| クレーン | 無 | 近隣住宅 | 無 |
| 賃料 |
275万円 (内消費税:250,000円) |
|---|---|
| 保証金 | 2500万円 |
| 解約引き | 825万円 |
| 敷金 | 無 |
| 礼金 | 無 |
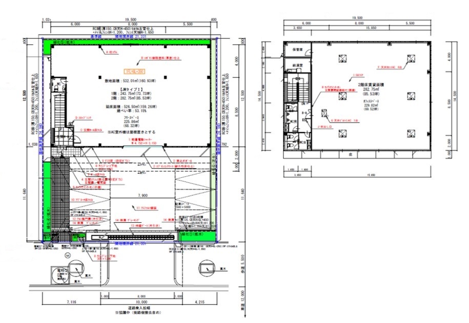
| 建物面積 | 526.5m²/159.26坪 |
| 土地面積 | 532.01m²/160.93坪 |
| 各階面積 | 1階 倉庫 73.73坪 2階 事務所 85.53坪 |
| 坪単価 | - |
| 所在地 | 大阪府吹田市南吹田1丁目10-10 |
| 交通 | JRおおさか東線 南吹田駅 徒歩3分 |
| 建物構造 | 鉄骨造 |
| 階数 | 2階建 |
| 築年月 | 2026年7月末完成予定 |
| 用途地域 | ニ住 |
| 駐車場 | 有 |
| 接道 | 南東 22m |
| 現況 | 未完成 |
| 引渡し | 2026年8月上旬予定 |
| 設備 |
・軽量電動シャッター ・1階フォークリフト用電源 ・トイレ2ヶ所 ・給湯 ・エアコン ・太陽光発電(自家消費型) ・蓄電池 |
| 備考 | ・貸主指定火災保険加入要 |
| 取引態様 | 一般 |
| 更新日 | 2026年1月21日 |