
| 大型車輌 | - | EV | 無 |
|---|---|---|---|
| プラットホーム | 無 | 事務所 | 有 |
| クレーン | 無 | 近隣住宅 | 無 |
| 賃料 |
148.5万円 (内消費税:135,000円) |
|---|---|
| 保証金 | 810万円 |
| 解約引き | 297万円 |
| 敷金 | 無 |
| 礼金 | 無 |
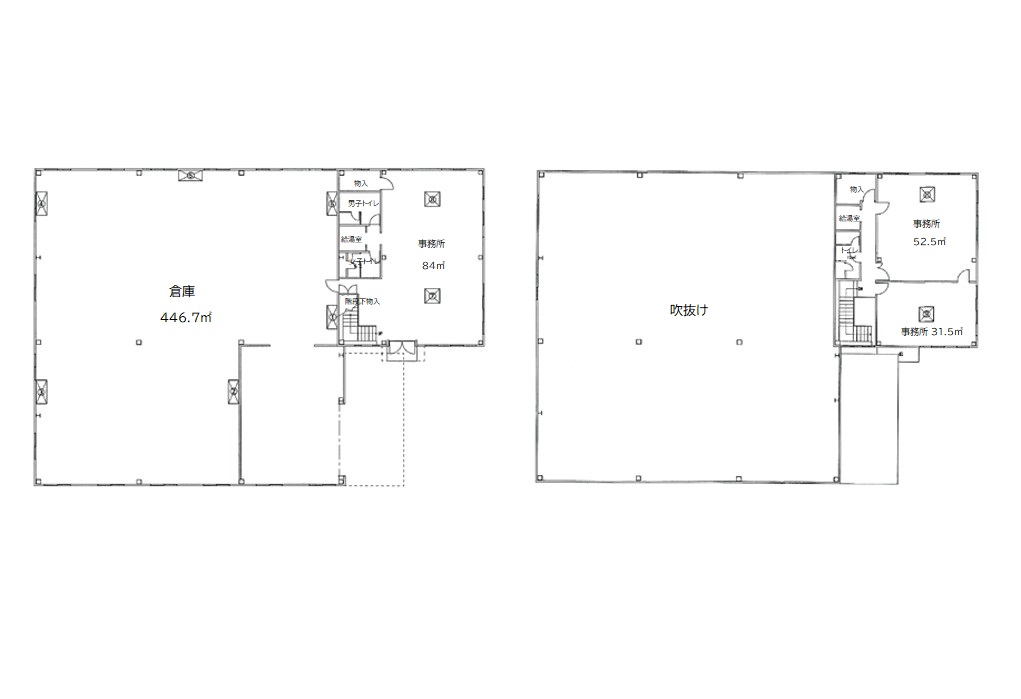
| 建物面積 | 684.3m²/207坪 |
| 土地面積 | 728.18m²/220.27坪 |
| 各階面積 | 平屋倉庫 135坪 2階建事務所 各25坪 |
| 坪単価 | - |
| 所在地 | 東大阪市新庄西10-35 |
| 交通 | 近鉄けいはんな線 荒本駅 徒歩20分 |
| 建物構造 | 鉄骨造 |
| 階数 | 2階建 |
| 築年月 | 1992年1月 |
| 用途地域 | 商業 |
| 駐車場 | 有 |
| 接道 | 前面 8m |
| 現況 | 空 |
| 引渡し | 相談 |
| 設備 |
・上下水道 ・トイレ ・給湯室 ・事務所エアコンあり(残置物) |
| 備考 |
・一部改修予定 その他現状有姿 ・ |
| 取引態様 | 一般 |
| 更新日 | 2025年11月4日 |